Plus de 80 millions d’euros investis dans les hypermarchés et galeries Cora
Mitiska REIM, repreneur des actifs immobiliers des hypermarchés et des galeries Cora, a levé un coin du voile sur ses ambitions pour les sept sites wallons et bruxellois dans Le Soir et L’Echo.
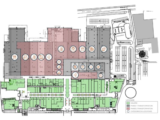
40% des surfaces commerciales laissées vacantes par l’hypermarché ont déjà trouvé un nouveau locataire. L’entreprise investira au total plus de 80 millions d’euros pour la transformation des sept sites.
► Relire | Les hypermarchés Cora commenceront à être restructurés à partir du 30 septembre
Chaque magasin Cora va être scindé en petits espaces commerciaux. “Nous venons d’annoncer l’arrivée de DreamLand sur les sept sites. Dans les prochaines semaines, d’autres enseignes (une dizaine) viendront les rejoindre. Les premiers travaux sont prévus pour le 1er octobre 2025”, détaille Bram Thomas (directeur général pour la Belgique, les Pays-Bas et la France). “Notre objectif général est clair”, poursuit le directeur général: “transformer les hypermarchés et galeries en centres commerciaux régionaux, ancrés autour de l’alimentaire. La mixité commerciale devra répondre aux besoins des consommateurs d’aujourd’hui. A l’avenir, nous attirerons des enseignes qui reprendront une partie de l’assortiment des anciens Cora (alimentaire, non alimentaire, mobilier de jardin…), mais aussi des enseignes venant compléter l’offre existante dans les galeries.”

L’entreprise précise que l’horeca et les loisirs ne seront pas oubliés.
Belga