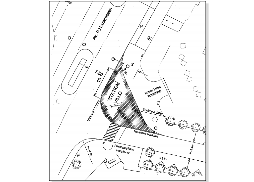
Woluwe-Saint-Lambert: bientôt une station Villo devant la station de métro Tomberg

Des travaux débuteront en août sur la place Tomberg à Woluwe-Saint-Lambert. Objectif, améliorer la sécurité des piétons devant l’entrée du métro Tomberg et installer une station Villo!.
La commune a demandé à la Région de procéder au rétrécissement de l’évasement du carrefour situé à l’angle de l’anevue Paul Hymans et du parking en épis situé en contrebas de l’hôtel communal.
Les travaux devraient débuter début en août. Tout sera mis en œuvre pour qu’ils soient terminés pour la rentrée de septembre. (photo: Belga/Siska Gremmelprez)
